欢迎光临新风换气机生产厂家——靖江格林空调官方网站!
20年专注一件事
全热交换新风换气机专家
格林热线:400-688-1350
网站公告: 格林空调最新消息:科技不断进步,我公司保留修改性能参数表、外形尺寸的权利,恕不另行告知,更多资讯致电免费热线:4006881350
格林空调主要产品
新风换气机
新风舒适系统
Pm2.5新风换气机
全热交换器
热回收机组
新风除湿机
送风机系列

查看更多

24小时全国服务热线

400-688-1350

如果您有任何疑问或是问题,请随时与我们联系

查看联系方式>>
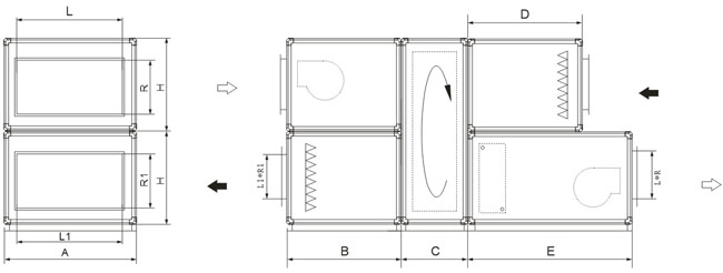
转轮式全热交换空气处理机组 当前位置:主页 > 产品展示 > 热回收机组 > 转轮式全热交换空气处理机组 >

转轮式全热交换空气处理机组

作者:格林新风换气机     更新时间:2017-09-21 10:07    点击量:

转轮式全热交换空气处理机组

 

轮转式全热交换器系列性能参数表:

转轮式全热交换空气处理机组

上一篇:没有了
【返回列表页】
地址:江苏省靖江市城北园区经一路59-15号  全国免费热线:400-688-1350  
手机:(0)13809011350(张先生)  电话:+86-0523-84526333  传真:+86-0523-84526555
技术支持:靖江百事通        空间支持:三A网络        苏ICP备11090884号-7
新风换气机,全热交换器,格林空调造
在线咨询 x
有什么可以帮到你
点击咨询

苏公网安备 32128202000320号